网站首页 > 案例展示

【周店小区】

点击次数:1419  更新时间:2022-05-12
建筑面积:128㎡
设计风格:日式 Zakka风
设计机构:桃弥空间设计

装修金额:45万(家电7万)

【原始勘测图】

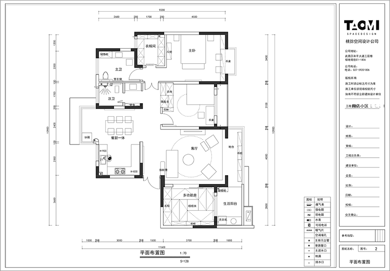
【平面布局图】

【客厅图】

【过道】

【主卧图】

【卫生间】

上一篇: 【招商公园】    下一篇: 【常青花园】

联系我们

24小时咨询热线 18627061616

工厂地址:
武汉市武昌区和平大道三角路绿地铭创大厦 4 楼407 室

Copyright © 2014-2021 武汉桃弥室内装饰设计有限公司 All Right Reserved. 备案号:鄂ICP备2021008472号-1 技术支持:易畅客营销系统