【飞鸟集】
点击次数:909 更新时间:2021-06-03
项目地址:世贸锦绣长江
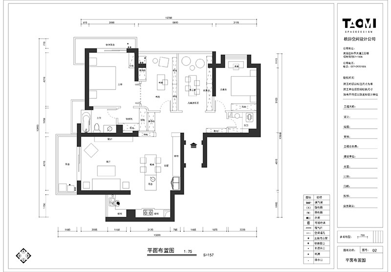
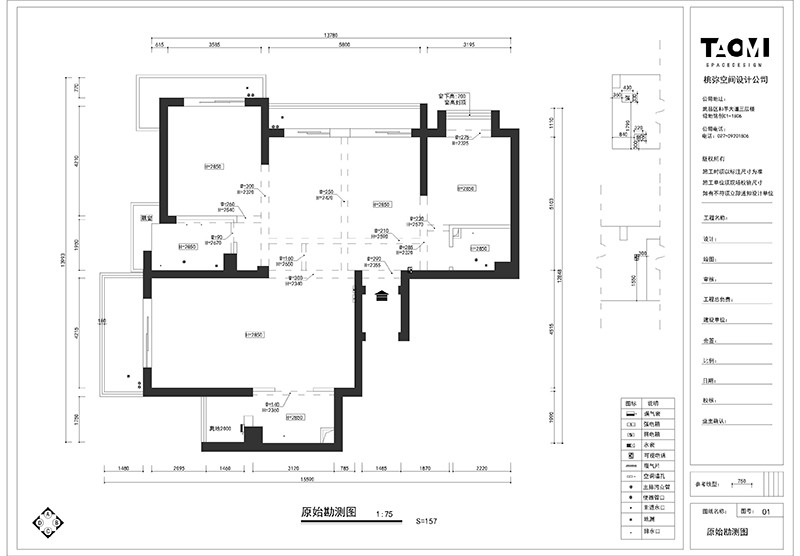
建筑面积:186平米
设计机构:桃弥空间设计
设计风格:乡村风
工程造价:60万
设计要点:充满生活情趣的三口之家,让花鸟与绿植常伴。
桃弥的设计风格里,有一组【自然风格】,我认为是除了波普的标签外,最受欢迎的一种风格。与其说是一种风格,不如说是一种生活状态。
“自然”从来都不是风格:我们每天呼吸过的空气,仰望的蓝天,走过的树荫,可想过让它们成为生活状态常伴左右?这套案子我们提取了很多“自然”里的元素及材质:手工制作的原木家具,大地色系的仿古砖,鸟兽的壁纸与装饰画。让原生态的居家生活里,多一丝灵动的气息。
餐厅。 餐厅里我们用中岛台代替了餐桌。可以当西厨的操作台面,做些烘焙或者西餐毫无压力。远处拱形里是中厨,也算是开敞式,跟西厨完全联通打开,从此告别孤单烹饪。
中岛餐桌的内部全部做成了收纳,生活的小电器必须有地安家。
中厨的墙面全被木头包围,有种在森林里取火烧饭的质感。
客厅摈弃了多余的造型,简简单单的做旧白砖墙带出年代感。石头垒的壁炉自然粗犷。
从书房的折叠门看主卧,实木做旧的质感诉说着年岁。床头选的一款千鸟集的壁纸,推开门的一瞬间感觉热闹戛然而止于平静。

宝宝活动的空间也需要精心设计:摩天轮是他的玩具柜,实用又有趣。手工桌,阅读角,小帐篷,软木板的创作展示,一个都不能少。空间宽敞,来几个小伙伴更惬意,在自己小天地里肆意玩耍。
玄关几根大梁压低了整体层高,干脆木头包梁,剩余的拿木头升高层高。木质感让回家变成很放松的体验。